日本初!都心のヴィンテージマンションを専門にご紹介!
東京ヴィンテージマンションTOP> 南青山パークマンション
南青山の奥座敷に建つパークマンションシリーズ
三井不動産旧分譲のマンションの中でも最高峰となる【パークマンション】シリーズです。表参道と広尾の中間に位置し、どちらも徒歩10分以上かかりますが、平坦な道のりでアクセスしやすい立地です。マンションの北側は六本木通りに面していますが、南側は穏やかな低層住宅街が広がり落ち着いた住環境です。
1981年8月築の地上10階建で、雁行型をしたモダンなファサードが目を引きます。50㎡~100㎡の多彩な住戸を擁する全55戸のマンションは、採光や通風などの居住性に優れた住戸配置も魅力。エントランスはオートロックで、エレベーター2基。外観・共用部ともに築年数を感じさせない綺麗な状態で、維持管理への意識の高さが窺えます。
六本木通りを走るバスの本数が多く、バス停も至近にあり、六本木や渋谷へのアクセス良好です。
スーパーマルエツプチや成城石井が近隣にあり、日々の買い物も困りません。


| 外観・共用部 | |
![]() |
|
![]() |
![]() |
![]() |
![]() |
![]() |
![]() |
![]() |
![]() |
![]() |
|
![]() |
![]() |
ゆったりとしたアプローチを構えるエントランス。通りから奥まっているためプライバシーが確保されやすく、オートロックなのでセキュリティー面も安心です。エントランス周りには木々や植栽が巡らされ、居住者を優しく迎えてくれます。エレベーター2基、駐車場、トランクルームなどの設備も整っています。外観・共用部ともにメンテナンスがしっかり行われ、大切に住み継がれている様子がうかがえます。
![]()
![]() |
![]() |
![]() |
![]() |
表参道と広尾の中間に位置し、「表参道」駅からは徒歩12分です。「表参道」駅は銀座線・半蔵門線・千代田線の3沿線が通り、駅ナカのお店も充実しているのでとっても便利です。
======以下成約済のお部屋======
| 成約済!住居専用 | 9階部分 |
![]() |
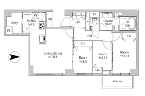
新規フルリノベーション済 日当たり・眺望良好(夜景も綺麗) 広いユーティリティーで収納たっぷり
賃料:-円 間取:3LDK(家族構成次第で2LDK、1LDK) 面積:67.03㎡
|
![]() |
|
![]() |
|
![]() |
|
![]() |
![]() |
![]() |
|
![]() |
|
![]() |
|
![]() |
![]() |
![]() |
![]() |
![]() |
![]() |
![]() |
![]() |
![]() |
![]() |
| 浴室乾燥・暖房つき | 収納力のあるユーティリティ |
![]() |
![]() |
![]() |
|
![]() |
![]() |
| 平置き駐車場 | 駐車場入口 |