日本初!都心のヴィンテージマンションを専門にご紹介!
東京ヴィンテージマンションTOP> シャトー東洋南青山
白亜の「シャトー回廊」が象徴的なモダンヴィンテージ 〈弊社専任〉
シャトー東洋南青山は、表参道駅から徒歩5分、青山学院大学キャンパス近くに建つヴィンテージマンションです。黒川建設が手掛けた分譲マンション【シャトー】シリーズの一つで、1971年8月築の8階建、総戸数89戸のマンションです。シックなグレーブラウンのタイルにホワイトの窓枠が映えるモダンな外観で、シャトーシリーズを象徴的する白亜の“シャトー回廊”も印象的です。豊かな共用空間や、立地・管理体制の良さなどから、シャトーシリーズの中でも高い人気を誇るヴィンテージマンションです。
シャトーシリーズをご売却・ご購入・賃貸・管理をご検討の方は多数契約実績のある弊社にお任せください!是非一度お問合せ下さいませ。
シャトーシリーズ、売買実績9件、賃貸実績10件!(2023年12月時点)
マニアページはこちら。


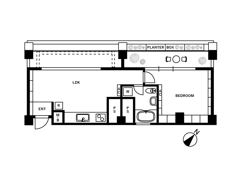
![]() |
シャトー南青山は、港区南青山5丁目に佇むヴィンテージマンションです。表参道駅から徒歩5分、骨董通りから青山学院キャンパス方面へ進んだ道なりに位置しています。シックなグレーブラウンのタイルにホワイトの窓枠が映えるモダンな外観です。築年数は経っているものの、大規模修繕工事済で外壁や共用部はとても綺麗です。

■ 販売中 6階部分(1LDK/42.30㎡) 10,000万円
● 人気の南青山5丁目の中でも静かで住みやすいエリア
● 眺望良好な希少なお部屋位置!
● プライベート感のある広いバルコニー
● ご自身でリノベされたい方におすすめのお部屋
|
数あるシャトーシリーズの中でも人気があり、なかなか空室の出ない上層階で希少な部屋位置のお部屋が販売を開始いたしました◎ 専有面積約42.30㎡で、ゆったりと住みたいシングルの方やお荷物の少ないDINKSの方にちょうど良い広さのお部屋です。
![]() |
![]() |
![]() |
都心でありながら空に開けた眺望と、広いバルコニーがとても魅力的なお部屋です。バルコニーにはプランターボックスがあり、売主様は以前バラを植えられていたそうで、ガーデニングはもちろん、気候の良い季節には外のテーブルでコーヒーを飲んだりなど、様々な使い方が楽しめそうですね。
![]() |
![]() |
お部屋には大きなガラスの開口部が設けられており、プライベート感のある広いバルコニーが面積以上の豊かさを感じさせます。
![]() |
建築士の売主様が仕事場として利用されていたので、造り付けの大きな書棚が向かい合せで並びます。
![]() |
こちらの書棚にはエアコンがきっちり入っていて、すっきりしていますね。本や雑誌はもちろん、コレクションしているものや置き物を飾ったりなど、使い方はさまざま。経年も感じられるため、ご自身のお好みに合わせて全面リノベーションされるのも良いかもしれません。
![]() |
たくさんの収納があり、使い勝手の良さそうなキッチン。壁付けでコンパクトに収まっています。
![]() |
![]() |
バスルームはお風呂、トイレ、洗面所が同室とコンパクトにまとめられていますが、高級感がありホテルのような趣きです。窓がついているところも〇
空室のため、ゆっくりと内覧いただけます。
お気軽にお問合せ下さいませ!
![]()
■その他共用部
![]() |
|
![]() |
![]() |
エントランスや一部エレベーターはバリアフリー仕様に改修されています。オートロックで月~土は19時までは管理人さんが人の行き来を見守ってくれています。住民に寄り添った修繕がしっかりと施されているマンションです。
![]() |
![]() |
![]() |
![]() |
1階部分には駐車場とゴミ置き場があります。雨に濡れずにスムーズに出入りできるのが便利ですね◎
![]() |
![]() |
![]() |
![]() |
![]() |
![]() |
![]() |
|
お正月にはエントランスに立派な門松が飾られます♪オートロックのエントランスを抜けると、外光を取り入れた明るいエントランスホール☆宅配ボックスも備わり、不在時も便利に使えますね。フロントでは親切な管理員さんが対応して下さいます◎
![]() |
|
![]() |
![]() |
エレベーターは2基。一基は車椅子でも利用できるバリアフリー仕様です◎エレベーターホールから駐車場側へ出入りできます。
![]() |
|
![]() |
|
各住戸をつなぐ吹き抜けの共用部は、「シャトー回廊」と呼ばれ、波打つような曲線が美しいデザインです。今のマンションでは考えられない贅沢な空間は、マンション黎明期の豊かさを感じることができ、ゆったりとした気持ちにさせてくれます。
![]() |
共同物干し場になっている屋上。さすが青山のど真ん中、都会ならではの景色が楽しめます。
■成約事例 5階部分 (1LDK/71.16㎡)
●南東向きで陽当たり良好
●敷地内の緑が見えるのどかな眺望
●室内美装 リノベーション履歴有(2019年)
![]() |
![]() |
5階のお部屋のご紹介です。71.16㎡のゆったりとした1LDKで、優雅にお一人暮らしやスマートなお二人暮らしに良さそうです。
室内は2019年にスケルトンからのリノベーションが行われ、綺麗に使われています。
![]() |
|
![]() |
|
LDKはゆったり約19.9帖。南東向きの窓から爽やかな日差しが射し込む心地よい空間です。ダークトーンのフローリングにグレーの天井や壁面の落ち着いた雰囲気ですが、日中は照明を付けなくても十分な明るさです。
![]() |
|
![]() |
![]() |
玄関からリビングに向かうホール部分の壁面には可動式のオープンシェルフがずらり。
お気に入りの雑貨やアートを飾ってギャラリー風にしたり、普段使いの物を置いて見せる収納を楽しんだり、季節や気分によって様々な用途で使用できそうなスペースです。
![]() |
![]() |
使い勝手が良さそうなオープン型のキッチン。手元が隠れる仕様なのですっきりと見えます。カウンターが備わっているのも嬉しいポイントです。
![]() |
![]() |
|
![]() |
![]() |
|
続いて、水廻り。洗面化粧台とバスルーム、洗濯機置き場がひとまとまりになっています。バスルームは1216サイズとややコンパクトですが、その分パウダールームが広めのスペースとなっています。隣にはウォークインクローゼットが設置されていて、たっぷり収納していただけます◎
![]() |
![]() |
洋室は広さ約6.4帖です。共用部に面した窓ですが、柔らかな光が射し込み落ち着く空間です。ウォークインクローゼットやパウダールームへの動線がスムーズなのも高ポイント◎
![]() |
|
![]() |
|
![]() |
![]() |
![]() |
|
![]() |
|
バルコニーは南東向きで陽当たりがよく、眺望も良好。季節により敷地内の植栽なども見えて潤いのある緑景に和みます◎
![]()
■成約済 2階部分 (1DK/35.23㎡)
●新規フルリノベーション住戸(2023年5月完成済み)
●収納豊富な1DK
●長期修繕計画書有、管理体制良好
![]() |
2階部分に新規フルリノベーション済みのお部屋が販売開始いたしました!
お一人暮らしやセカンドハウスなどに最適なコンパクトな1DKタイプです。
![]() |
|
![]() |
![]() |
![]() |
|
![]() |
|
![]() |
![]() |
ダイニングキッチンは約10帖です。キッチンが奥まった配置のため、生活空間のゾーニングがしやすく、動線も良さそうです。可動棚やクローゼット、吊戸収納などの豊富な収納を活かして居住スペースを広く使いたいですね◎
洋室は約7.1帖で、ワイドな開口部が程よく開放的。南向きに比べるとやや採光は淋しいかもしれませんが、柔らかな自然光に寛げる空間です。
水まわりもリニューアル済みです。洗面台とバスルームがまとまった2点ユニットバスですが、追焚きと浴室乾燥が備わり、快適にお住まいいただけます。トイレが独立しているのも嬉しい。
![]() |
バルコニーからの眺望です。向かいのマンションと距離がとれているため、閉塞感が少なく、採光も確保されます。視線の先には青山学院のキャンパスも見えたり、適度に抜け感のある眺望です。
![]()
※間取りは現況です。
2階部分、約140平米のゆったりとしたお部屋が販売開始となりました。
室内はフルリノベーションを予定していて、2023年6月末に工事が完成予定です。
![]()
■成約済 4階部分(2LDK /88.96㎡)
●新規フルリノベーション済
●全居室に窓のある暮らしやすい2LDK
●収納・設備充実
●管理費18,750円/月、修繕積立金17,307円/月
![]() |
4階部分に新規リノベーション済みのスタイリッシュなお部屋が販売開始いたしました。約88㎡のゆとりある2LDKタイプで、室内設備・収納が充実した暮らしやすいお部屋です。
![]() |
|
![]() |
|
![]() |
![]() |
![]() |
![]() |
LDKは約19.5帖の広さ。北西向きの窓とバルコニーが並び、柔らかな光に満ちています。折り上げ天井が高級感・開放感を演出し、ゆったりと寛げる雰囲気です。エアコンと床暖房も新設され、寒い季節も快適にお過ごしいただけます。
![]() |
![]() |
リビングの一角にはガラスの引き戸で仕切られた約2.0帖のスペースが。程よいお籠り感があるので、ワークスペースにもよさそうです。
キッチンはLDから適度に奥まった半独立タイプです。お料理に集中でき、生活感も抑えられるのがいいですね。
![]() |
![]() |
バルコニーは小ぶりながら日差しはしっかり届きます。正面のマンションとは一定の距離があり、閉塞感は和らぐかなと思います。
![]() |
|
![]() |
約8.0帖の洋室部分。腰高窓が落ち着いた雰囲気で、寝室に良さそうです。リビングのワークスペースとお揃いのガラス引き戸のクローゼット付です。
![]() |
![]() |
![]() |
約7.5帖の洋室部分。こちらはバルコニーとウォークインクローゼットがあります。リビング側のバルコニーよりも抜け感があり、青山学院や渋谷方面の街並みが眺められます。
![]() |
![]() |
廊下には大型の収納があり、日用品や家電などまとめてしまえそうな収納力が頼もしい。
![]() |
|
![]() |
![]() |
![]() |
![]() |
![]() |
![]() |
オーバーシャワーヘッド付のバスルームや、手洗いカウンター付のトイレなど、水まわりの設備も充実。
![]()
■成約事例 7階部分(1LDK /35.63㎡)
●室内新規フルリノベーション予定(2022年9月上旬完成予定)
●上層階角住戸 眺望良好
●ワイドなルーフテラス付き
●管理費8,412円/月、修繕積立金7,765円/月
![]() |
上層階、7階部分のお部屋が販売となりました◎
お一人暮らしやセカンドハウスによさそうな35.63㎡の1LDKタイプ。
上層階の角住戸、ワイドなルーフテラスが付いていて、平米数以上の広さが感じられそう。高い建物には隣接していないので、都心の一等地でありながらも開放的な眺望が愉しめます。
![]() |
![]() |
![]()
■成約済 2階部分(2LDK+SIC/74.47㎡)
●新規フルリノベーション済
●南西向き陽当たり・通風良好
●バルコニーから敷地内の緑が楽しめます
●管理費15,383円/月、修繕積立金16,665円/月
![]() |
![]() |
|
![]() |
![]() |
![]() |
|
![]() |
|
きらびやかな内装になって新登場、、、。ゆったりとした約18帖のリビングの大きな窓からは、2F部分とは思えない抜けた眺望と敷地の緑が見え、都心とは思えない落ち着きです。周辺住戸や隣地からの目線も気にならない位置なので、広めのバルコニーで寛ぎたくなりますね。
![]() |
![]() |
![]() |
|
![]() |
![]() |
落ち着いた色味の内装と、シンプルな白基調の内装と雰囲気の異なる2つの洋室。どちらにも大きめの収納もあります。
![]() |
![]() |
![]() |
![]() |
![]() |
![]() |
廊下や収納内部まで真新しく、スタイリッシュな空間へ。廊下など、居住スペース以外に収納が多く、人が集まる空間は見た目にもすっきりと使用できそうです。お部屋全体的にグレートーンでまとまりがあります。ここから植物や家具などの彩りを添えて、より完成度の高い空間を目指してはいかがでしょうか。
■成約済 4階部分(1LDK /48.87㎡)
●2021年6月内装リフォーム済み
●暮らしやすい1LDK
●窓が多く採光・通風良好
![]() |
4階部分にリフォーム履歴のある爽やかなお部屋が販売開始いたしました!
専有面積約48㎡で、収納やデスクスペースを設けた暮らしやすい1LDKタイプです。
![]() |
|
![]() |
|
![]() |
![]() |
![]() |
![]() |
![]() |
![]() |
![]() |
|
約16.5帖の広々としたLDK。主採光となる東向きの窓の他に、キッチン側にも窓があり、両面から柔らかな光が入ります。
腰高窓かつ周囲からの視線が気にならないため、日中はカーテンを開放しても落ち着いて過ごせそうです。
クローゼットとデスクスペースが収まりよく造作されていて、また、反対側にはピクチャーレールも設置されていたりと、気の利いたリビング空間です。
![]() |
|
![]() |
|
![]() |
![]() |
![]() |
![]() |
![]() |
![]() |
洋室は約6.1帖の広さで、バルコニーが付いています。こちらも東向きなので、日当たりは午前中がメインになりますが、爽やかな朝日が期待でき、快適な寝室になりそうです。間口の広いクローゼットも完備。
適度なお籠り感が落ち着くバルコニー部分。正面に建物があるものの、植栽や空も垣間見えてのどかな眺望です。
![]() |
|
![]() |
|
![]() |
![]() |
![]() |
|
キッチンは、すっきりとした壁付けタイプです。自然光の入る窓とエアコンもあり、快適にお料理できそうです。
窓を開けるとシャトー回廊が♪共用廊下になるものの、光と風の抜ける開放的かつ曲線美が冴える空間は、つい眺めていたくなります。
キッチンの奥には冷蔵庫置き場と、ランドリースペースが並びます。ランドリースペースには可動棚も備わり、空間を無駄なく活用した収納が高ポイント。
![]() |
![]() |
![]() |
![]() |
ベージュカラーで品よくまとまったサニタリースペース。浴室は独立していて、追焚き機能を完備。洗面室とトイレが一体型になっている点や、浴槽がやや小ぶりな点で若干お好みが分かれるかもしれませんが、必要十分な仕様かつホテルのような洗練された水まわり空間です。
![]() |
![]() |
![]() |
![]() |
玄関はこじんまりとした広さながら、シューズボックスがしっかり備わっています。
玄関を出ると、光と風が抜ける素敵な共用空間が。回廊を中心として四方に各住戸が配置されていて、プライバシーに配慮されたつくりです◎
![]()
■成約済み 5階部分(1LDK/71.16㎡)
●南東向き!通りに面していないので静かなお部屋位置です
●敷地内の緑を望む眺望
●新規リノベーション工事実施済
![]() |
![]() |
![]() |
![]() |
![]() |
|
![]() |
![]() |
![]() |
|
![]() |
![]() |
![]() |
|
![]() |
|
![]() |
|
![]() |
|
![]() |
![]() |
![]() |
![]() |
|
![]() |
|
![]() |
![]() |
![]() |
|
![]() |
|
![]() |
|
![]() |
![]() |
![]() |
|
![]() |
|
![]()
■成約済み 3階部分(1LDK/50.13㎡)
●東向き!通りに面していないので静かなお部屋位置です
●敷地内の緑を望む眺望
●賃貸同時募集中
![]() |
人気のヴィンテージマンションより3階のお部屋が販売となりました。お一人またはお二人暮らしに良さそうなゆったりとした1LDKタイプのお部屋です。
![]() |
|
![]() |
|
![]() |
![]() |
![]() |
|
玄関を入ると広がる約14畳のリビングダイニング。クッションフロアに壁紙、天井には埋込型の蛍光灯とライティングレールの組み合わせ。共用部にある白亜の「シャトー回廊」の雰囲気をそのまま引き継いだような白を基調としたすっきりとした内装が良い雰囲気です。
分譲時からあった押入れを改造したオープンクローゼットは白く塗られ、全体的にちょっとレトロでラフな仕上がりがヴィンテージマンションらしい一室です。
![]() |
|
![]() |
![]() |
![]() |
|
東側の窓からの眺望。前面に建物があるため開けた眺望というわけではありませんが、ご覧の通り敷地内の緑が臨めます。
![]() |
|
![]() |
![]() |
反対側の窓の向こうはマンションのシンボルとなっている”シャトー回廊”が。回廊の手前は吹き抜けになっているので、人の気配も気になりにくいですし、西側なので午後は時間帯によって吹き抜けから陽の光が差し込みます。
![]() |
|
![]() |
![]() |
![]() |
|
奥にはキッチンスペースがコンパクトにまとまっています。シンクは大きめですが一口コンロのため、お料理をよくされる方は思い切って交換されるのも良いかもしれません。
![]() |
|
![]() |
![]() |
![]() |
![]() |
![]() |
|
お隣の寝室は約6畳。こちらにはバルコニーがございます。オープン収納はロールスクリーンで隠せる仕様になっています。
![]() |
|
![]() |
![]() |
![]() |
|
窓を開けるとしっとりとした緑の香りとともに鳥のさえずりも聞こえてきます◎人目も気になりにくいのでカーテンを開放したままでも過ごせそう。
![]() |
![]() |
![]() |
|
![]() |
![]() |
![]() |
![]() |
水回りはレトロなタイルが貼られた在来型。海外で見るようなシンプルなトイレやギザギザした照明、角ばった洗面台やレバーハンドル型の水栓金具も古いものですが、なんだか逆に新鮮に見えますね。
雰囲気は抜群なのですが、実際に暮らす事を考えると浴槽は長さが1メートル程度な事や洗濯機を置くとドアと干渉してしまう事、排水の処理など色々と直したくなる部分もでてくるかと思います。使い勝手などぜひ現地でお確かめください。
![]() |
![]() |
![]() |
|
建物が隣接しているので、電気を消すと正直明るいとは言えない空間ですが、窓を開けると手の届きそうな位置に緑があり、都心とは思えない程静かな環境に癒やされます。
ヴィンテージないい雰囲気の残っている使いやすい間取ですので水回りや空調など気になる部分は交換して、床を無垢フローリングに変えるだけでも大分雰囲気がでるんじゃないかと思います。
![]()
■成約済み 2階部分(1LDK/44.18㎡)
●投資向けオーナーチェンジ物件(表面利回り4.7%)
●人気のヴィンテージマンション!
●スケルトンからのフルリフォーム済
●敷地内の緑を望む眺望
![]() |
※オーナーチェンジ物件※
2階のお部屋が販売となりました。お一人またはお二人暮らしに良さそうな1LDKタイプのお部屋です。
![]() |
|
![]() |
![]() |
![]() |
![]() |
![]() |
|
室内はスケルトンからのフルリノベーションが行われ、爽やかに生まれ変わりました。LDKは約10帖。木の温もりを感じられるフローリングは、ツヤ感のあるオイル仕上げです。
![]() |
|
![]() |
![]() |
![]() |
|
![]() |
![]() |
![]() |
![]() |
![]() |
![]() |
![]() |
![]() |
キッチンはリビング奥に配置されています。窓から自然光が感じられ、お料理も捗りそう。
冷蔵庫はキッチン入口付近に置けます。また、キッチン横のスペースにもコンセントがあるので、キッチン家電なども置けそうです◎
![]() |
|
![]() |
![]() |
![]() |
![]() |
![]() |
|
![]() |
![]() |
洋室は約4.5帖。共用廊下に面して窓があり、採光・通風に役立ちます。クローゼットも新設されました。
窓の向こうは、マンションのシンボルとなっている”シャトー回廊”♪♪回廊の手前は吹き抜けになっているので、人の気配も気になりにくいと思います。
![]() |
![]() |
![]() |
![]() |
![]() |
![]() |
![]() |
![]() |
![]() |
![]() |
![]() |
![]() |
![]() |
![]() |
![]() |
![]() |
![]() |
![]() |
![]() |
![]() |
続いて水廻りをチェック。
バスルームと洗濯機置き場はLDK側、トイレとパウダールームは廊下側にそれぞれあります。各所に収納が設けられていて機能的に使えそう。ダスティーブルーの壁紙もさり気ないアクセントになってお洒落♪♪
![]() |
![]() |
![]() |
![]() |
![]() |
![]() |
![]() |
![]() |
玄関には、天井まであるシューズクローゼットが新設されています。
オイル仕上げでつやつやのフローリングやマットな壁面タイルなど、異素材が調和した室内空間♪♪
天井に仕込まれた照明は、梁の凹凸を上手に活かしています。
![]() |
|
![]() |
![]() |
![]() |
![]() |
![]() |
|
最後に眺望をチェック。前面に建物があるため開けた眺望というわけではありませんが、緑が多くて癒される光景です♪
人目も気になりにくいので、カーテンを開放したままでも過ごせそう。
窓を開けると、しっとりとした緑の香りとともに鳥のさえずりも聞こえてきましたよ♪♪
南青山の中でも人気の高いヴィンテージマンションで、賃貸需要も見込めるマンションです(◍•ᴗ•◍)
![]()
■成約済み 7階部分(1R/25.33㎡)<オーナーチェンジ>
●人気のヴィンテージマンション!
●最上階角部屋、広々ルーフバルコニー付!
●投資向けオーナーチェンジ物件
![]() |
※オーナーチェンジ物件※
![]() |
|
![]() |
![]() |
![]() |
![]() |
最上階角部屋の明るいお部屋のご紹介です。室内は数年前にリフォーム工事が行われ、水回りなどもキレイになっています。
![]() |
|
![]() |
![]() |
![]() |
![]() |
眺望はご覧の通り抜けています♪ウッドデッキが敷かれたルーフバルコニーは広々約11畳。ワンルームではありますが、このルーフバルコニーのおかげでお部屋全体もゆったりと感じられます。
![]()
■成約済み 6階部分(1LDK/55.04㎡)
●南東向きで陽当たり・眺望良好!
●新規リノベーション住戸(平成29年12月上旬完了)
●アフターサービス保証付
●管理体制良好のヴィンテージマンション!
![]() |
6階のお部屋が販売となりました。55.04㎡のゆったりとした1LDKで、優雅にお一人暮らしやスマートなお二人暮らしに良さそうです。
室内は、スケルトンからのリノベーションが行われ、綺麗に生まれ変わっています(平成29年12月完了)。
![]() |
|
![]() |
![]() |
こちらのお部屋の大きな魅力は、この開放的な眺望ではないでしょうか♪
青山の街並みを見晴らす清々しい光景が広がります。
![]() |
|
![]() |
![]() |
![]() |
![]() |
![]() |
![]() |
![]() |
|
クラシカルに仕上がった室内を早速ご紹介します。
LDKは約16.3帖。南東向きの窓から爽やかな日差しが射し込む心地よい空間。
ダークトーンの床面で落ち着いた雰囲気ですが、日中は照明を付けなくても十分な明るさです。
柱や梁の出っ張りが目立たず、家具の配置もしやすそうですね。
天井にはモールディングが施され、空間に立体感が生まれています。
![]() |
|
![]() |
![]() |
![]() |
![]() |
![]() |
![]() |
![]() |
|
キッチンはLDと一体感のある対面式です。シンクや作業スペースもゆったりしていて使いやすそう。
床面近くまでたっぷり収納できるスライドストッカーも備わっており、収納も充実。
キッチン側からも眺望が望めますので、気持ちよくお料理できそうですね♪
![]() |
![]() |
![]() |
![]() |
![]() |
|
![]() |
![]() |
![]() |
|
洋室は約9.0帖。こちらのお部屋もバルコニーに面して採光・通風・眺望に優れています♪
天井面がベージュの落ち着いたカラーリングで、プライベート感の漂う設えです。
手前のスペースには収納棚が新設され、オープンクローゼットとして衣類などをまとめて収納できそうです◎
![]() |
![]() |
![]() |
![]() |
![]() |
![]() |
![]() |
![]() |
![]() |
![]() |
![]() |
![]() |
続いて、水廻りと玄関を見ていきましょう。洗面化粧台とバスルーム、洗濯機置き場がひとまとまりになっています。
バスルームは1115サイズとややコンパクトですが、その分パウダールームが広めのスペースとなっています。
洗濯機置き場はパウダールームの奥まったところにあり、トイレは玄関ホール突き当りに位置しています。
玄関ホールには、シューズボックスと収納棚がズラリと並んでおり、たっぷり収納していただけます。
![]() |
|
![]() |
|
![]() |
|
![]() |
![]() |
![]() |
![]() |
![]() |
![]() |
![]() |
|
最後に、バルコニーと眺望を再びチェック。
LDと洋室にまたがるワイドスパンのバルコニーは、南東向きでお日様サンサン♪♪
そして先にご紹介したとおり、青山の街並みを一望するGood View◎
前面に高い建物がなく、遠くまで見晴らせる開放的な眺望です。敷地内の植栽も相まって、清々しい光景ですね!
新緑から紅葉、枯れ葉の季節まで四季折々の自然を愉しめますよ。
![]()
■成約済み 4階部分(1LDK/35.24㎡)
●お一人暮らしに最適な1LDK!投資用としてもオススメ
●リノベーション向き
●骨董通りまで徒歩1分
4階のお部屋が販売となりました!
35.24㎡の1LDKで、お一人で気ままに暮らしていただくのにぴったりのお部屋です♪
お部屋は北西向きですが、窓から明るい光が入ってきます。
![]() |
![]() |
LD・個室にそれぞれ窓があり、通風良好です◎
![]() |
![]() |
![]() |
![]() |
室内は、落ち着いた木目調でややレトロな雰囲気。建具の扉など各所にポップなオレンジが効いてます!現況でのお渡しとなりますので、リノベーションをご自身でお考えの方に特にオススメ★
![]() |
![]() |
造り付けの収納棚やルーバーなどは味わいがあるので、このまま活かしていただくのも良いかもしれません◎
![]() |
![]() |
![]() |
![]() |
キッチンは壁面のタイルがオシャレ★作業スペースには、キッチン家電を並べられそうです♫
ガスコンロや冷蔵庫、洗濯機が海外製で、外国のキッチンのようなモダンな雰囲気です。小窓からは共用部が見えます。
![]() |
![]() |
![]() |
![]() |
トイレと洗面台が一緒になっているので好みが分かれそうですが、お一人暮らしならば充分かもしれません。奥にはシンプルな1116サイズのユニットバスがあります。
最後に眺望です。
![]() |
![]() |
目の前には同じくらいの高さのマンションが建っていますが、少し距離があるので見上げると空も見えます。
【シャトーシリーズ】の中でも特に人気の高いマンションですので、
南青山エリアでヴィンテージマンションをお探しの方は必見です!
現況でのお渡しとなりますので、ご自分のお好みでリノベーションしていただくのも良いかもしれません(◍•ᴗ•◍)
// リノベーションプラン //
建築士によるリノベーションプランをご紹介。
※設計・施工は別途費用がかかります。
壁構造のため壁を取り払う事のできないコンパクトな間取ですが、象徴的な大きめのアイランドキッチンを置いて友人とワイワイ食事をしたり、ダイニングスペースを確保してゆったりしたLDKをつくってみたり…工夫次第では居心地の良い空間にアレンジ可能です。
天井も少し懐があるので、現状より20cm位はあげられるかもしれません。
弊社では、建築家をご紹介する本物志向のリノベーションサービスを行っておりますので、
リノベーションを視野に入れたご相談もお気軽にどうぞ♪
![]()
■成約済み 3階部分(2LDK+WIC/71.16㎡)
●新規リノベーション済!
●南向きのお部屋。日当たり良好◎
●南青山5丁目の閑静な立地
販売になるとすぐに決まってしまうシャトー東洋南青山。
エントランスも一新し、人気の衰えないヴィンテージマンションです。
![]() |
![]() |
LDKは広々と16.3帖確保。
水回りの設備も一新し、ハイスペック仕様のお部屋に生まれ変わりました!
窓からのグリーンビューで心安らぐ憩いのスペースとなりそうですね♪
![]() |
![]() |
![]() |
こちらはリビング横の洋室。南東向きで陽当たり・眺望良好です♫
広さは約6.2帖、大容量のウォークインクローゼットが備わっています◎
収納棚もあり、収納力バツグン!
![]() |
![]() |
もう一部屋の洋室は約6.3帖。
こちらは北側に位置するため、残念ながら陽当たりはあまり望めませんが、
窓があるので閉塞感なく過ごしていただけそうです。
![]() |
![]() |
![]() |
![]() |
||
水廻りも一新され、機能面も充実しています♪
南青山エリアでも特に人気の高いヴィンテージマンションです。
ヴィンテージマンションは好きだけれど内装は綺麗な方がいい、という方にぜひオススメしたい物件です(◍•ᴗ•◍)
気になる方はお気軽にお問い合わせ下さいませ♪
(大山)
![]()
■成約済み 3階部分(1LDK/55.13㎡)


リビング・ダイニング部分の様子。
バルコニーは北西方向ですが、窓から光が差し込み暗さは気にならないですね。

こちらのお部屋は、もともとワンルームだったところを、1LDKに間取りを変更したお部屋になります。


![]()
■成約事例 2LDK
![]()
白を基調としたリビングから大きな開口部越しに緑が見えます。
![]()
大きな鏡、棚、高さのある天井、ホワイト・・・
バランス感いいですね。センスの良さを感じます♫
![]()
大きな窓と緑がとても印象的で居心地の良い空間です。
外部からの目線も全く気になりません◎
![]()
おおきなキッチンも白が基調となってます。
コンベック付きです。
![]()
![]()
![]()
![]()
その他、細部にもこだわりが随所に見られます。
金具も雰囲気づくりの良いスパイスになってます。
当時の住まわれていた方のリノベーションインタビューはコチラです↓
http://www.aoyama-baibai.com/staff/2012/06/post-11.php
弊社では、
★シャトーシリーズ★のマニアな情報を掲載しています↓